Clicky

Denenchofu 4
  •  View from the street

    View from the street

  •  South Terrace

    South Terrace

  •  South Terrace

    South Terrace

  •  North Facade

    North Facade

  •  East Terrace

    East Terrace

  •  Entrance

    Entrance

  •  Entrance and Office

    Entrance and Office

  •  Staircase and corridor towards living room

    Staircase and corridor towards living room

  •  East Patio

    East Patio

  •  Stair detail

    Stair detail

  •  East side patio

    East side patio

  •  East side patio towards living room

    East side patio towards living room

  •  East side patio

    East side patio

  •  East side patio

    East side patio

  •  Stair from basement parking to patio

    Stair from basement parking to patio

  •  Breakfast room towards kitchen and living room

    Breakfast room towards kitchen and living room

  •  Breakfast room towards kitchen and living room

    Breakfast room towards kitchen and living room

  •  Living dining towards breakfast room

    Living dining towards breakfast room

  •  Living Dining room

    Living Dining room

  •  Living Dining room

    Living Dining room

  •  Living Dining room

    Living Dining room

  •  Living Dining room

    Living Dining room

  •  Living Dining room

    Living Dining room

  •  Second floor corridor towards family room

    Second floor corridor towards family room

  •  Second floor corridor towards main bedroom

    Second floor corridor towards main bedroom

  •  Second floor corridor towards family room

    Second floor corridor towards family room

  •  Bedroom

    Bedroom

  •  First floor guest washroom

    First floor guest washroom

  •  Main Bedroom bathroom

    Main Bedroom bathroom

  •  Japanese Bathroom

    Japanese Bathroom

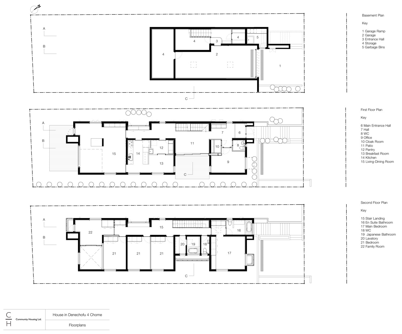
  •  Floorplans

    Floorplans

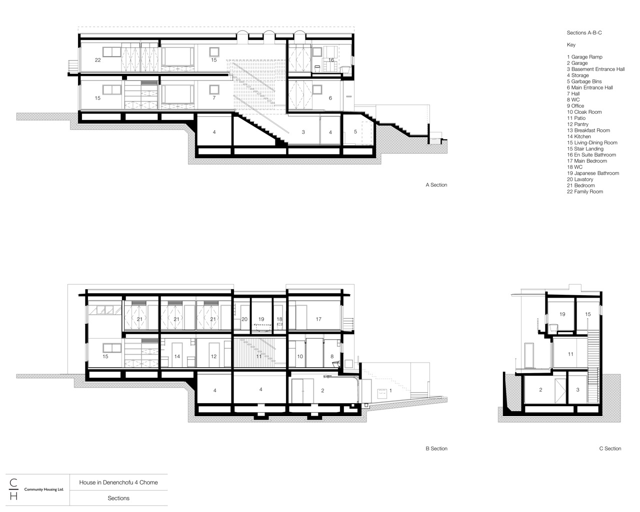
  •  Sections

    Sections

田園調布4

田園調布4丁目に平成21年1月に完成した戸建て住宅です。間口が狭く奥行きが深い敷地形状のため長い間買い手がつかず空地になっていましたが、その特性をプラスに転じるデザインを提案しました。
1階は、道路側から、住宅の奥に進むにしたがいプライバシーを重視する空間を配し、これらの空間は西側の廊下によってつながっています。

廊下の位置は設備配線、配管ルートとオーバーラップしており、生活空間、廊下、設備ルートの3つが明解に配されていることがこの住宅を特徴づけています。また、近隣の豊かな緑を取り込む窓の配置によって、間口の狭さを感じさせない開放的な空間を生み出すことを目指しました。

素材および仕上げは、点と線以上に面を強調することによって空間の形態を制御することを念頭に選択しています。さらに、所有者の希望で「いつでも売れる、いつでも貸せる」ことを想定し、日本人だけでなく田園調布に住宅を求める外国人居住者のライフスタイルにも適応できる設計を目指しました。

用途: 賃貸住宅
面積:335 m2
設計:有限会社コミュニティー・ハウジング
建設: 株式会社技覚
竣工: 2009/01

Photos: ©Ogawa Shigeo

English